- Forside
- Bolig
- Kjøpe
- Bruktboligsøk
- Asper hageby - salgstrinn 2 - Hus B, lnr 2013 *OBOS Bostart, 2040 Ullensaker
Asper hageby - salgstrinn 2 - Hus B, lnr 2013 *OBOS Bostart
SOLGT | Andelsleilighet: Asper hageby - salgstrinn 2 - Hus B



Ullensaker
Asper hageby - salgstrinn 2 - Hus B, lnr 2013 *OBOS Bostart, 2040 Ullensaker Se kart hos Google
Vil du vite hva boligen ble solgt for? Ta kontakt med megler.
Totalpris er prisantydning/fastpris + fellesgjeld. I tillegg kommer kjøpsomkostninger.
Fellesgjelden er et lån som borettslaget har forhandlet fram for alle boligene samlet. Du blir ansvarlig for andelen av fellesgjelden som er tilknyttet din bolig.
Kostnader som kommer i tillegg til kjøpesummen, for eksempel dokumentavgift og tinglysningsgebyr.
Månedlige utgifter:
Felleskostnader dekker driftskostnadene til borettslaget samt nedbetalingen av din eventuelle andel av fellesgjelden.
Nøkkelinformasjon
Borettslag
OBOS Eiendomsmegler som har solgt boligen
Erlend Kvaløy
Eiendomsmegler

Ta kontakt dersom du har spørsmål om boligen eller for en hyggelig prat om boligen din.
Kontakt meg for gratis verdivurdering

Hvorfor velge oss når du skal selge din bolig?
- Erfaring og lokalkunnskap – vi kjenner ditt nabolag.
- Forutsigbarhet – ingen overraskelser underveis, vi forteller deg hva det faktisk koster.
- Tilgjengelighet og service – vi følger deg gjennom hele salgsprosessen og svarer på alle dine spørsmål.
- Faglig trygg – vi har egen juridisk avdeling som bistår våre meglere ved behov.
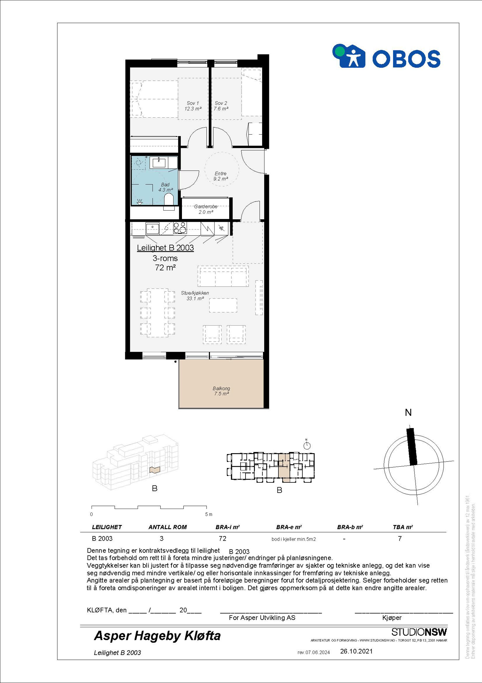
Plantegninger

Trenger du boliglån til drømmeboligen?
Som OBOS-medlem får du vår laveste rente på boliglån! Vi har åpen prisliste, så du kan være sikker på at du alltid får vår beste pris og ikke trenger å forhandle om renten.
Se våre boliglån