
Passer drømmeboligen til tomta?
Når du skal bygge hus spiller tomta en avgjørende rolle. På en tomtebefaring utforsker vi tomta sammen, og vi gir deg råd og løsninger på ting du kanskje ikke har tenkt på.
Bestill gratis tomtebefaring
På en flat tomt i landlige omgivelser, har en familie fått oppfylt drømmen om en innholdsrik enebolig, med rom for flere generasjoner.
I et landlig område inntil marka i Heggedal, fikk en hyggelig barnefamilie tilgang til en flat og idyllisk tomt som var fradelt mannens barndomshjem. Sammen med kona sin mor hadde de en drøm om å bygge en generasjonsbolig.

Når du skal bygge hus spiller tomta en avgjørende rolle. På en tomtebefaring utforsker vi tomta sammen, og vi gir deg råd og løsninger på ting du kanskje ikke har tenkt på.
Bestill gratis tomtebefaringDrøm ble til virkelighet, og sammen har vi tegnet og prosjektert en innholdsrik og arealeffektiv bolig med plass til en kjernefamilie på fire. I en separat toromsleilighet, i den ene delen av første etasje, bor mormor.
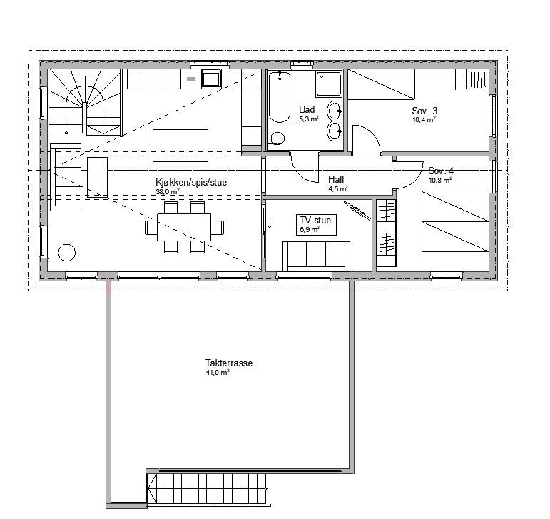
Boligen er bygget med plate på mark og går over to etasjer, med tilliggende dobbel carport og sportsbod. Hoveddelen rommer fire soverom, to baderom og vaskerom med direkte inngang fra carport. Denne delen består også av TV-stue og et lyst og åpent allrom/kjøkken med peis, røstet himling og store vindu- og dørflater ut mot takterrasse i øst.
Kunden ønsket kledning i en rolig grønnfarge som harmonerer med de grønne omgivelsene. Sammen med vinduer, dører og beslag i antrasittgrå farge ble det en spennende og vakker kombinasjon. En flott generasjonsbolig hvor alt ligger til rette for at gode minner kan skapes!

