
Passer drømmeboligen til tomta?
Når du skal bygge hus spiller tomta en avgjørende rolle. På en tomtebefaring utforsker vi tomta sammen, og vi gir deg råd og løsninger på ting du kanskje ikke har tenkt på.
Bestill gratis tomtebefaring
På en tomt med mye vegetasjon, har vi bygget en arealeffektiv enebolig med takterrasse, tilpasset omgivelsene. Den fleksible planløsningen gjør at boligen kan brukes ulikt utfra familiens behov.
Kunden kontaktet oss for å se på muligheten til å skille ut en tomt og bygge sin egen nye enebolig på den. Terrenget på eiendommen var relativt flatt, med et lite fall fra sør mot nord. Det var mye vegetasjon på tomta, blant annet fem større trær. Det ble lagt stor vekt på bevaring av det eksisterende terrenget og vegetasjonen. Derfor ble det valgt en løsning som ivaretok dette, der det planerte terrenget i størst mulig grad skulle tilsvare det eksisterende terrenget. Vegetasjonen skulle skape lune uteoppholdsarealer spesielt mot nord, for å gi beboerne en opplevelse av nærhet til naturen.
Den nye eneboligen skulle passe for en familie med to barn i ungdomsalder. Det ble lagt vekt på fleksibilitet i planløsningen, slik at boligen kunne benyttes på forskjellige måter etter hvert som barna ble eldre og behovene endret seg.

Når du skal bygge hus spiller tomta en avgjørende rolle. På en tomtebefaring utforsker vi tomta sammen, og vi gir deg råd og løsninger på ting du kanskje ikke har tenkt på.
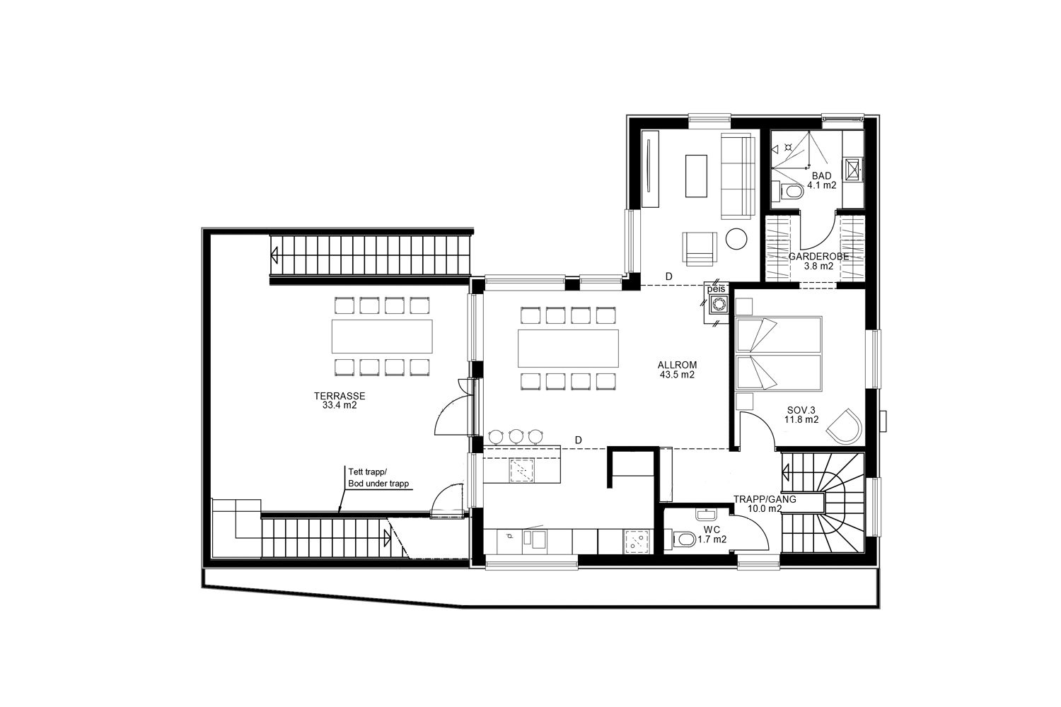
Bestill gratis tomtebefaringFørste etasje består av entré, teknisk rom, to soverom med felles bad og TV-stue for ungdommene. Her er det også et gjesterom med tilhørende bad, som kan benyttes av gjester eller ett av barna når de blir eldre.
I andre etasje ligger et allrom som består av kjøkken, spisestue og stue, et stort soverom med eget bad og garderobe, i tillegg til et gjestetoalett. Takhøyden i andre etasje er på 2,7 meter, og overkanten av vinduene er på 2,6 meter, for optimal utnyttelse av dagslyset. Fra spisestua har man direkte tilgang til terrassen over carporten. Fra terrassen fører en trapp ned til hagen og en trapp opp til takterrassen.
Boligen er bygget i elementer, med tre som hovedmateriale. Det er benyttet lysegrå STO-pussplater på fasaden i første etasje og liggende kledning i brun farge på andre etasje og carport. Mellom de sorte vinduene er det plassert STENI fasadeplater i sort farge.
Byggets form skaper en arkitektonisk ekspressiv bolig som omfavner uterommet og tilpasser seg terrenget og omgivelsene. Utformingen av boligen og alle materialvalgene er tatt med tanke på å tilpasse boligen til de nærliggende boligene, samtidig som flere av elementene i bygget er med på å skape en ny, naturlig og organisk estetikk. Boligens form passer i et urbant miljø og gir muligheten til å bygge kompakt, men funksjonelt.
To trapper forbinder terrassene og gir mulighet til direkte utgang til hagen fra alle plan. Store vinduer og horisontale vindusbånd mot vest sikrer god utnyttelse av dagslys, og forsterker opplevelsen av solens gang gjennom dagen. Arkitekturen og materialvalgene gir boligen et moderne preg, samtidig som den tar hensyn til og tilpasser seg den eksisterende nabobebyggelsen.

