
Passer drømmeboligen til tomta?
Når du skal bygge hus spiller tomta en avgjørende rolle. På en tomtebefaring utforsker vi tomta sammen, og vi gir deg råd og løsninger på ting du kanskje ikke har tenkt på.
Bestill gratis tomtebefaring
En enebolig tilpasset et langt livsløp, bygget på en utsiktstomt med utfordrende terreng. Resultatet? En arkitektonisk perle med unik tilpasning.
Vi ble kontaktet av en familie med to små barn, og ytterligere ett på vei. De hadde kjøpt en fantastisk utsiktstomt på idylliske Nærsnes i Asker. Naturtomta lå høyt og fritt, delvis på fjell, og med turterreng to meter fra nabogrensa. Barnefamilien ønsket først og fremst «et godt sted å være» og en bolig de kunne bo i resten av livet. De ønsket å tilpasse huset til tomta, og aller helst ikke sprenge bort fjellet. I tillegg ville de plassere boligen på en måte som ville gi tilgang til den fine sjøutsikten fra stua.
Tomta lå tilbaketrukket, midt i et felt med homogen bebyggelse, bestående av hvite Sørlandshus med saltak og rød takstein. Terrenget var utfordrende, fordelt på to nivåer, hvorav det nederste nivået strakk seg inn mot et skogholt med myrlendt og noe fuktig terreng.
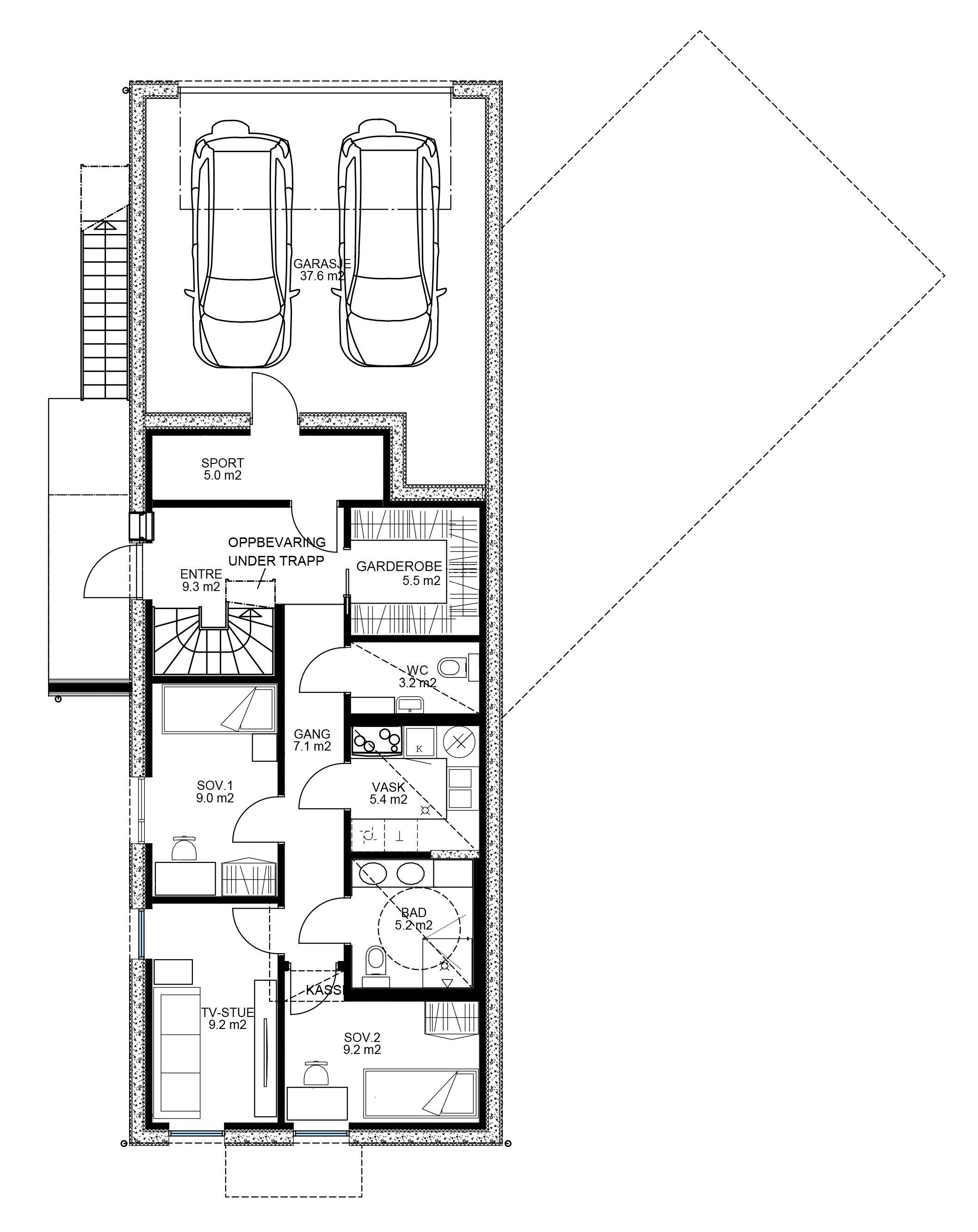
I forprosjektet kartla vi kundens behov og tanker om den framtidige boligen deres, og hvordan de så for seg å leve i den. De så for seg en bolig plassert på to ulike nivåer, med innkjørsel og garasje på nederste plan, og stue mot sjøutsikten på det øverste plan.
Familien la vekt på at boligen skulle bygges i gode materialer og være tilpasset et langt livsløp, med et 30-års perspektiv. De ønsket seg en bod ved trappa, som ved behov kunne gjøres om til heis senere i livet. I tillegg ville de ha god plass under taket og skjerming mot turstien, i form av en vegg eller svalgang, med vinduer høyt oppe på veggen. Utvendig så de for seg en vestvendt, skjermet uteplass, og en romslig gårdsplass med plass til biloppstilling.

Når du skal bygge hus spiller tomta en avgjørende rolle. På en tomtebefaring utforsker vi tomta sammen, og vi gir deg råd og løsninger på ting du kanskje ikke har tenkt på.
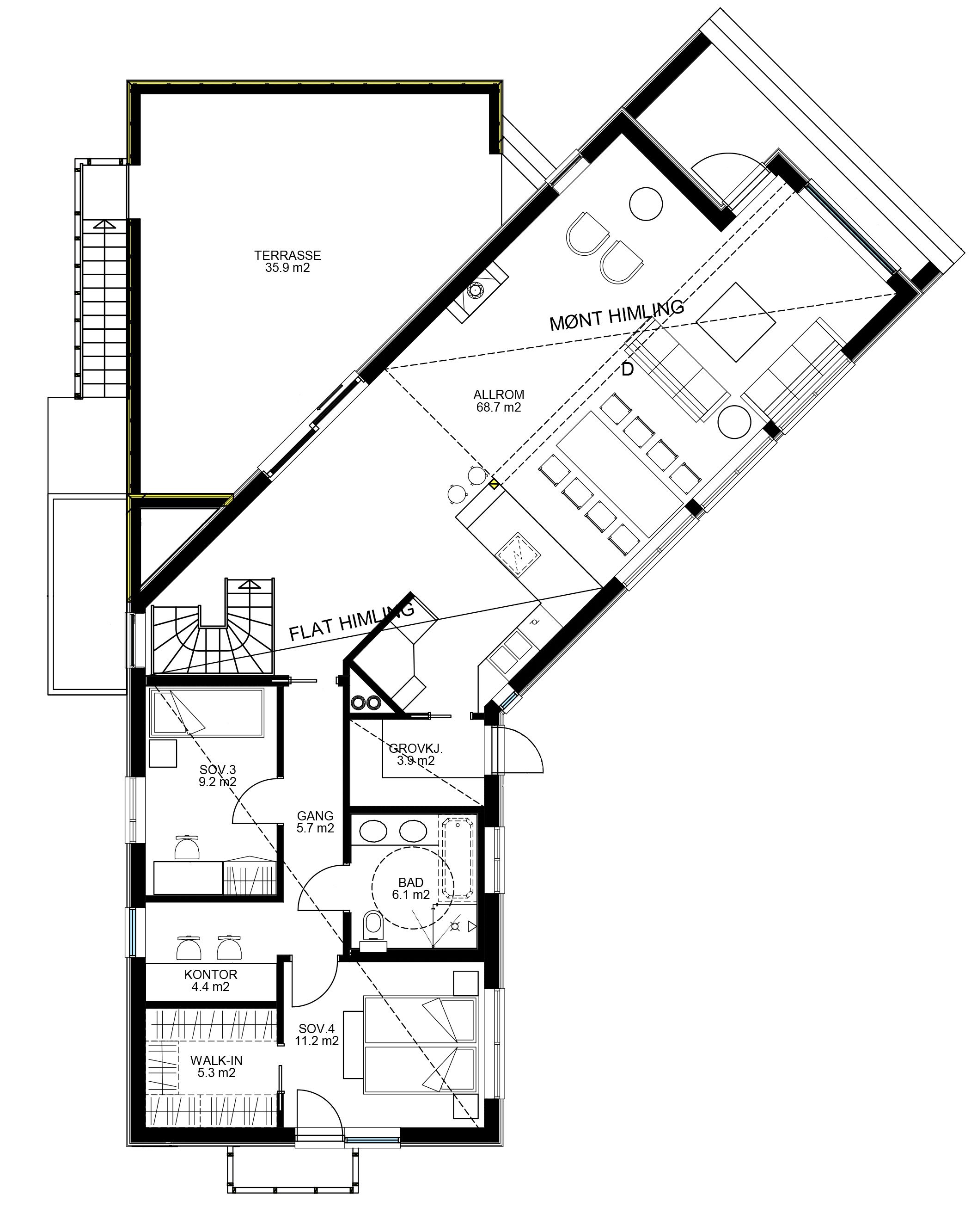
Bestill gratis tomtebefaringResultatet ble en arkitektonisk perle med unik tilpasning til tomtas gitte rammer. Boligen går over to fulle etasjer, hvorav første etasje er plassert parallelt og mer eller mindre i ett med fjellskråningen. Hovedetasjen ligger delvis over første etasje, men er vinklet slik at etasjens oppholdsrom ligger over svaberget, med utsikt mot sjøen. Familien har fått ett hjem med private soner for både små og store. Allrommet, som består av kjøkken, spisestue og stue, gir boltreplass for hyggelige stunder med både venner og familie. Rommet har røstet himling, galleriløsning med lesekrok, store vindusflater, peis, utgang til terrasse i nordvest og uteplasser på terreng i sørøst.
Eksteriøret ble holdt i en okergul Royalimpregnert kledning, kombinert med grå betongpuss i første etasje. Takstein, beslag, vinduer, dører og garasjeport ble levert i antrasitt gråfarge. Rundt terrassen valgte vi liggende spilerekkverk i samme materiale og farge som kledning for øvrig. Tomta var unik og en bolig utenom det vanlige har nå tatt plass som kronen på verket!

