
Passer drømmeboligen til tomta?
Når du skal bygge hus spiller tomta en avgjørende rolle. På en tomtebefaring utforsker vi tomta sammen, og vi gir deg råd og løsninger på ting du kanskje ikke har tenkt på.
Bestill gratis tomtebefaring
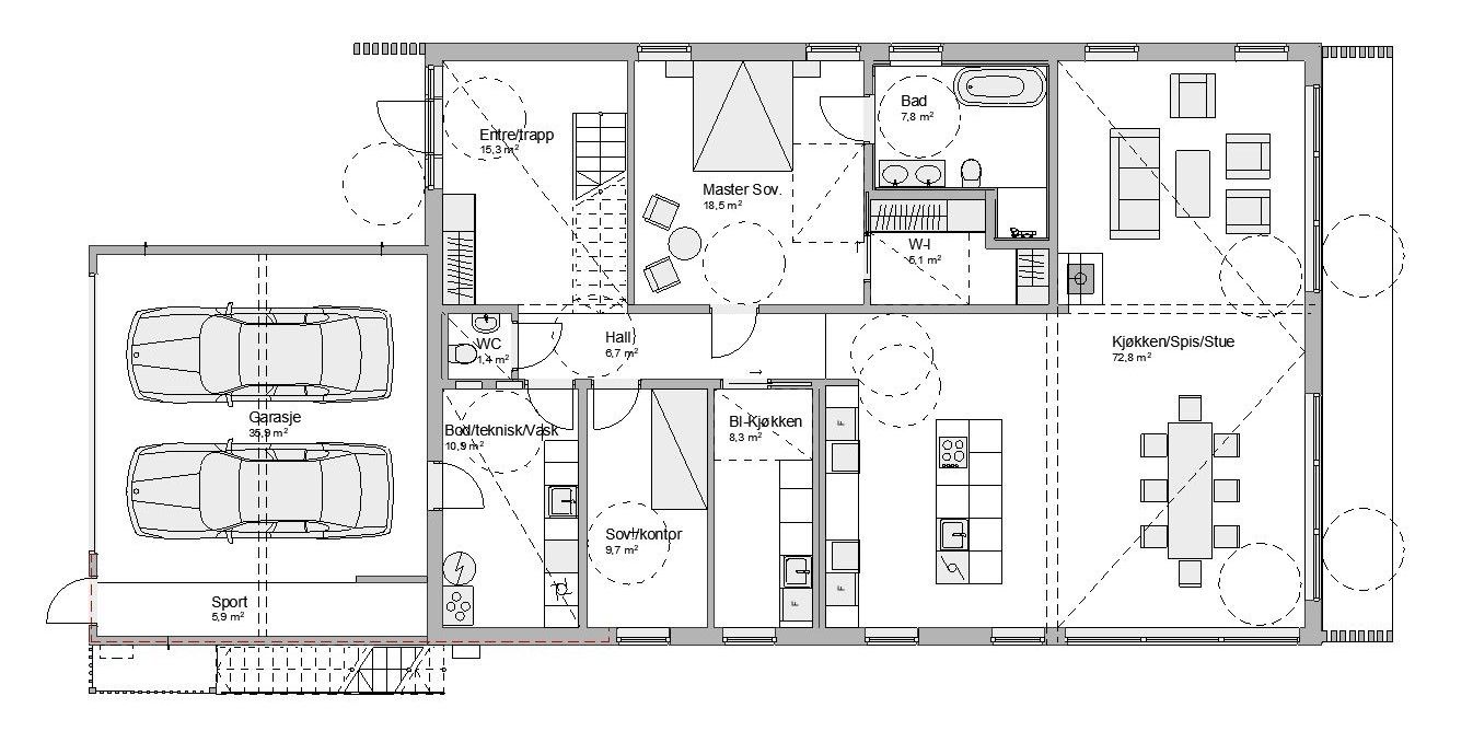
På en flat, rektangulær utsiktstomt med høy utnyttelsesgrad, har vi bygget en enebolig i tre, med alle hovedfunksjoner på ett plan.
Familien på fire voksne med hund, sikret seg drømmetomta på Manstad, en liten kystperle utenfor Fredrikstad. Tomta var siste gjenværende i den nyetablerte veistubben, den var relativt flat, hadde høy utnyttelsesgrad og nydelig sjøutsikt i sør. Kona i huset vokste opp i nabolaget, og med to voksne barn var det nå tid for å realisere boligdrømmen i landlige og maritime omgivelser. Kunden hadde stor interesse og forståelse for både eksteriør og interiør. Tomta hadde de hatt en stund, så de hadde gjort seg opp en klar formening om ideell plassering, rom og funksjonalitet.
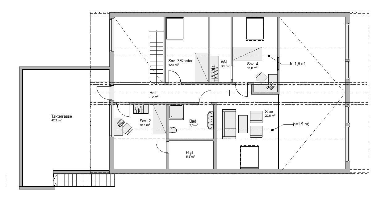
Tomtas flate terreng og rektangulære utforming ga rom for en avlang boligkropp. For å utnytte arealet maksimalt valgte arkitekten å trekke garasjen inn i bygningskroppen og plassere denne rett innenfor innkjørselen, parallelt med inngangspartiet. Over garasjen ble det tegnet en stor takterrasse mot nordøst, og i sørvest åpnet vi opp mot utsikten med store glassfasader fra gulv til tak.

Når du skal bygge hus spiller tomta en avgjørende rolle. På en tomtebefaring utforsker vi tomta sammen, og vi gir deg råd og løsninger på ting du kanskje ikke har tenkt på.
Bestill gratis tomtebefaringByggets hovedetasje inneholder alle funksjoner på ett og samme plan, og i stue og spisestue er det valgt røstet himling som gir en takhøyde på seks meter. Ellers rommer etasjen et stort vaskerom med sluse direkte fra garasjen, romslig entre med røstet himling, kontor og foreldreavdeling med soverom, garderobe og baderom. Det er også et grovkjøkken og et velutstyrt kjøkken i åpen løsning mot spisestua i denne etasjen. I andre etasje ønsket kunden en ungdomsavdeling. Her kom vi fram til en god løsning med tre soverom, baderom og en loftstue med galleriløsning, for optimalt med både lys og utsikt. Fra etasjen ble det også etablert utgang til takterrassen.
Det er lagt vekt på gode dagslysforhold, nærhet til naturen og en god flyt mellom hus og hage. Dette oppnås med bruk av store vinduer og skyvedører mot sør og vest, og takterrasse mot nordøst, med utvendig trapp som fører til hagen i vest.
Boligen er bygget i prefabrikkerte elementer, med tre som hovedmateriale. Fasaden er kledd med stående sortmalt kledning, med sorte fasadeplater mellom vinduer og i forbindelse med inngangspartiet. Vinduer, ytterdører og garasjeport er levert i dempet sort. For å skape mest mulig ro og balanse, ble også takstein og beslag holdt i samme farge. På takterrassen ble det montert glassrekkverk med sotet glass, for å minimere innsyn fra gateplan.

