
Passer drømmeboligen til tomta?
Når du skal bygge hus spiller tomta en avgjørende rolle. På en tomtebefaring utforsker vi tomta sammen, og vi gir deg råd og løsninger på ting du kanskje ikke har tenkt på.
Bestill gratis tomtebefaring
Med ønske om å videreutvikle eiendommen og utnytte større deler av tomta, har vi bygget en enebolig tilpasset det skrå terrenget.
Kunden kontaktet oss for å se på muligheten til å videreutvikle eiendommen sin. På det tidspunktet bodde familien i en enebolig, der store deler av tomta ikke var utnyttet. Ønsket var derfor å fradele tomta, slik at det kunne bygges en ny enebolig på den ene delen. Eneboligen skulle familien bo i selv, og det ble derfor lagt stor vekt på ønskene og behovene deres i utformingen av boligen, og at stilen og smaken deres skulle sette preg på interiøret.

Når du skal bygge hus spiller tomta en avgjørende rolle. På en tomtebefaring utforsker vi tomta sammen, og vi gir deg råd og løsninger på ting du kanskje ikke har tenkt på.
Bestill gratis tomtebefaringBoligen er bygget på en del av eiendommen som har skrått terreng, og ligger derfor delvis under terrenget mot nord. Bygget tilpasser seg det eksisterende terrenget slik at tomtas kvaliteter blir ivaretatt, og den eksisterende vegetasjonen er bevart i størst mulig grad.
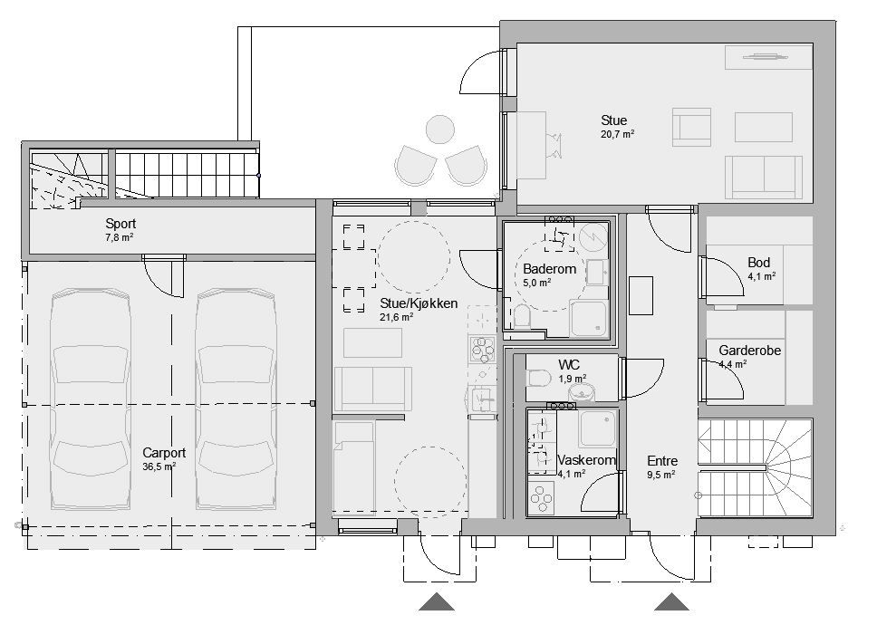
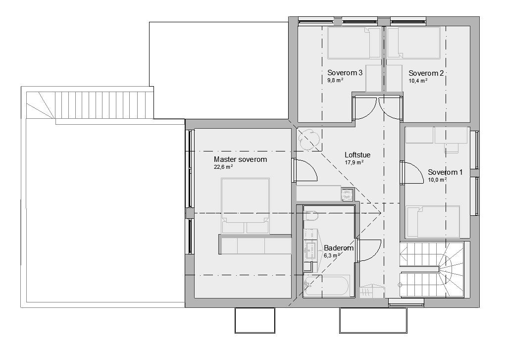
Bygget består av to fulle etasjer og en loftsetasje, samt carport med terrasse over. Ønsket om en utleiedel var høyt prioritert, og ble løst ved at en del av første etasje ble benyttet til dette formålet. I første etasje finner man i tillegg entré, garderobe, WC, vaskerom, bod og en stue som tilhører hovedbruksenheten. I andre etasje ligger stua, kjøkkenet og et bad. Det er direkte tilgang til terrassen fra kjøkkenet. Loftsetasjen fungerer som soveromsavdeling og består av fire soverom og ett bad.
Det er lagt vekt på gode dagslysforhold, nærhet til naturen og en god flyt mellom hus og hage. Dette oppnås med bruk av store vinduer mot sør og vest, samt sydvendt terrasse i andre etasje med utvendig trapp som fører til hagen.
Boligen er bygget i prefabrikkerte elementer med tre som hovedmateriale, og betong mot terrenget. Fasaden er kledd med liggende grå kledning for å tilpasse det nye huset til det eksisterende nabohuset, mens vinduer, ytterdører og beslag har fått sort farge.

