
Passer drømmeboligen til tomta?
Når du skal bygge hus spiller tomta en avgjørende rolle. På en tomtebefaring utforsker vi tomta sammen, og vi gir deg råd og løsninger på ting du kanskje ikke har tenkt på.
Bestill gratis tomtebefaring
På en hjørnetomt med skrånende terreng, har vi bygget en toetasjes enebolig med sokkeletasje. En familiebolig med egne soner for både voksne, barn og gjester.
I et godt etablert og fredfullt eneboligstrøk i Holmenkollen, lå en ubebygget hjørnetomt og ventet på et ungt par som nettopp hadde fått sitt første barn. Utsiktstomta lå innerst i en blindvei, skrånet mot sørvest og var ideell for en toetasjes familiebolig med sokkeletasje. Her skulle den kommende barnefamilien bygge og bo for framtiden, og vi fikk gleden av å hjelpe dem med å tegne og prosjektere deres framtidige hjem.
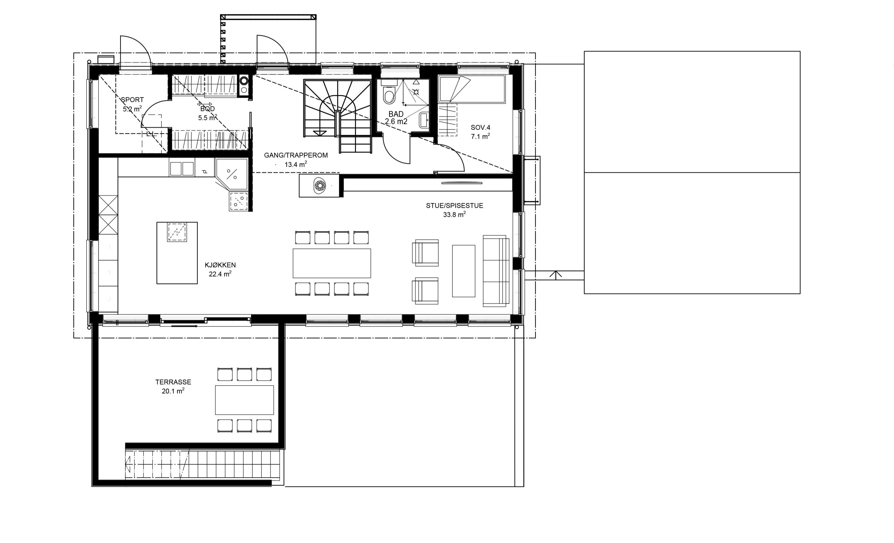
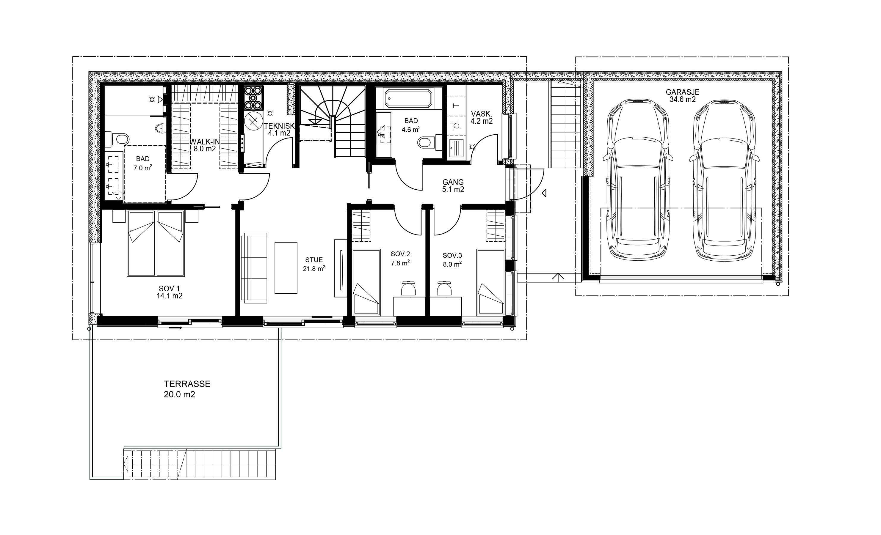
Barnefamilien, som i løpet av byggeperioden ble en familie på fire, ønsket seg en bolig med soner for både voksne, barn og familie som kom på besøk. De ville ha et stort og funksjonelt arbeidskjøkken i åpen løsning mot spisestue og stue. De ønsket seg en peis med glass på alle sider – et estetisk blikkfang i boligens entré og trappeoppgang. I tillegg ville de ha inngang vis-à-vis garasje, inn til vaskerom og grovgang i sokkeletasjen, og egen gjesteinngang fra gateplan og inn til hovedetasjen.

Når du skal bygge hus spiller tomta en avgjørende rolle. På en tomtebefaring utforsker vi tomta sammen, og vi gir deg råd og løsninger på ting du kanskje ikke har tenkt på.
Bestill gratis tomtebefaringBoligen glir elegant inn i terrenget og tar lite lys og utsikt fra bakenforliggende bebyggelse. Fra gateplan i øst er det kun hovedetasjen som kommer til sin rett. Går du rundt bygget derimot, møter du en toetasjes bolig med store vindusflater, terrasse og dobbel garasje. I tillegg til barnevennlige utomhusarealer bestående av hage og romslig gårdsplass.
Resultatet ble som planlagt, i underetasjen har barna fått sin egen avdeling med vaskerom, to barnerom og eget bad. Vis-à-vis tegnet vi en TV-stue med utgang til terrasse og hage. I den andre enden ligger en foreldreavdeling med garderobe, soverom og baderom. Oppe i andre etasje møter vi den plassbygde peisen i det vi kommer opp trappen. Innenfor finner vi et stort, vakkert kjøkken, og øvrige allrom med store vindusflater mot vakker utsikt. Etasjen rommer i tillegg et gjesterom med tilliggende bad, og en praktisk garderobe og romslig sportsbod innenfor entreen.
Kunden ønsket en bolig med overflater i betong. Den ble bygget i tre, men alle overflater ble pusset i hvitfarget STO-puss. Vinduer og fasadeplater ble levert i antrasitt grå farge og samme farge ble valgt på takstein, beslag, ytterdører og garasjeport.
Nå er også flaggstangen på plass, og familien har fått et hjem det er godt å være i!

