
Passer drømmeboligen til tomta?
Når du skal bygge hus spiller tomta en avgjørende rolle. På en tomtebefaring utforsker vi tomta sammen, og vi gir deg råd og løsninger på ting du kanskje ikke har tenkt på.
Bestill gratis tomtebefaring
På en romslig, flat tomt med en eldre enebolig, har vi realisert et søskenpars drøm om en felles tomannsbolig.
På en flat og romslig tomt, med attraktiv beliggenhet sentralt i Oslo, stod en eldre enebolig. Tomta og boligen ble overtatt av et heldig søskenpar, og sammen med hver sin familie kom de til oss for å realisere drømmen om en felles tomannsbolig.
Familiene viste tidlig at de hadde interesse og teft for både arkitektur og interiør, og sammen har vi hatt en spennende og kreativ reise med å lande gode løsninger tilpasset den enkelte families ønsker og behov.

Når du skal bygge hus spiller tomta en avgjørende rolle. På en tomtebefaring utforsker vi tomta sammen, og vi gir deg råd og løsninger på ting du kanskje ikke har tenkt på.
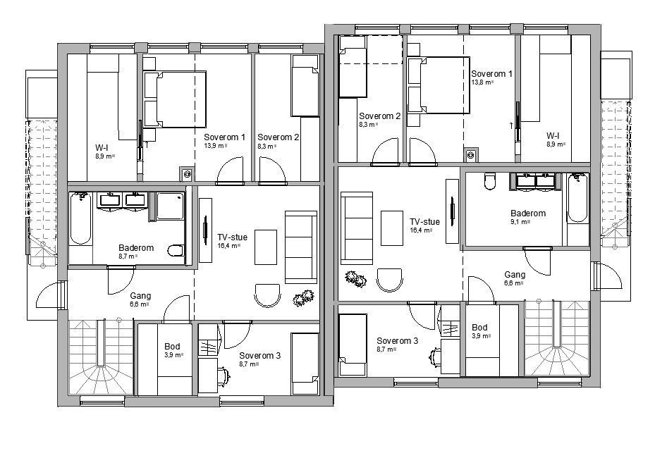
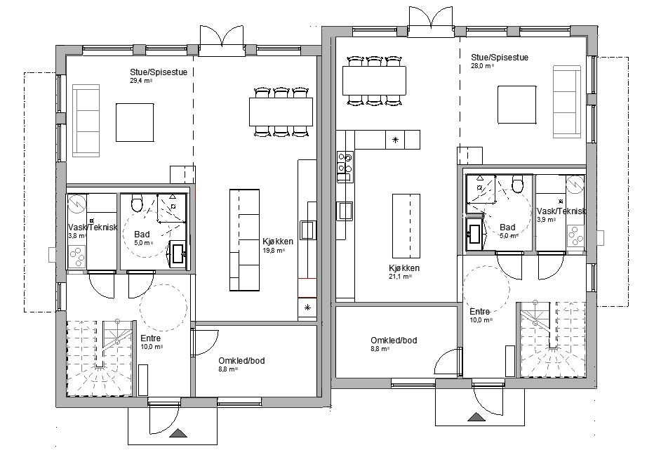
Bestill gratis tomtebefaringDrømmen ble realitet, eneboligen er revet og vi har bygget en moderne, arealeffektiv og smakfull tomannsbolig hvor to søstre bor vegg i vegg.
Interiørvalgene er forskjellige og gjenspeiler den respektive familie, men ved valg av planløsninger og fasadeuttrykk var begge par samstemte og gode samarbeidspartnere. Boligene har store allrom med velutstyrt arbeidskjøkken og romslig spiseplass. Peisen er sentral i oppholdsrommet, og gode vindusflater gir lys fra to sider. I tillegg rommer hver av boligene fire soverom, to baderom, vaskerom og rikelig med bodplass. Fra andre etasje lurte vi inn en utvendig trapp opp til takterrassen – selve kronen på verket. Her oppe har de fått store takterrasser med vidstrakt utsikt over Oslo by!
Med hver sin garasje, hyggelige uteplasser og en stor felles hage er boligdrømmen komplett, dette blir en boltreplass for både store og små!

